生野区桃谷4丁目 中古戸建

価格 2,480万円

1/23
Point

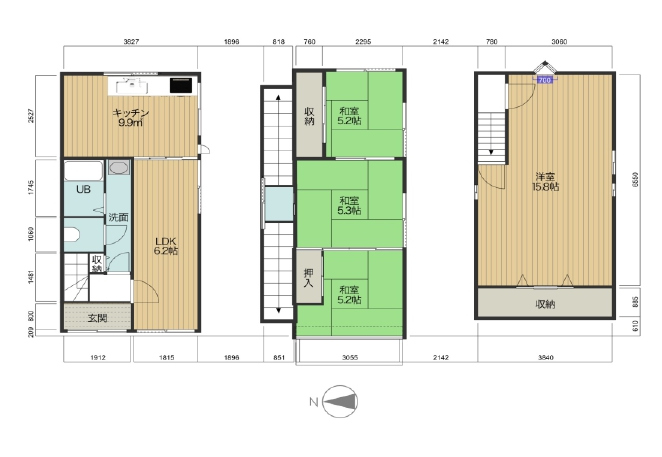
JR環状線・鶴橋駅から徒歩11分の好立地にある昭和63年築の中古戸建(4DK)です。

外壁と屋根はすでにリフォーム済みで、2025年4月までにキッチンやバス・トイレといった水回りも一新予定のため、新築のような快適さを期待できます。
敷地は約49㎡ながら建物面積は約86.8㎡とゆとりがあり、家族での暮らしにも十分な広さを確保。前面道路はやや狭いものの、その分落ち着いた環境で静かな住まいをお探しの方には魅力です。

築年数は経過していますが、リフォーム後の安心感と駅までのアクセスの良さが大きなメリットとなっています。
商業地域に位置し、周辺には買い物施設も点在。都心エリアへの通勤・通学にも便利なロケーションで、コストを抑えて理想のマイホームを手に入れたい方におすすめの一邸です。
空家につき、内覧も柔軟に対応いたしますのでお気軽にご相談ください。

物件コード「生野区桃谷4丁目 中古戸建」をお伝えください。

電話でお問合せ

物件情報

価格 2,480万円
アクセス JR大阪環状線 桃谷駅まで 徒歩11分
学区 大池小学校/大池中学校
土地面積 49.02m²
建物面積 86.8m²
建ぺい率 80%
容積率 300%
建物構造 木造
土地権利 所有権
用途地域 準工業地域
西暦築年月 1988/11
現況 空家
引渡時期 相談
駐車場
接道 西 4.5m(幅員) 3.6m(接面)
※掲載されている物件データが現状と異なる場合は現状を優先します。

更新情報

情報更新日 2025年12月15日
次回更新予定日 2025年12月16日
取引条件有効期限 2025年12月15日

ローンシミュレーション

物件価格 2,480万円
頭金 万円
金利
借入期間
再計算
月々の返済額
年間の返済額
返済総額
利息合計
※ 毎回の返済額が開始から終了まで均等となる「元利均等返済」で算出しています。
※ 金利は期間中固定となる固定金利を採用しています。
※ 月々の返済額は小数点以下を繰り上げしております
※ シミュレーションでの結果は、あくまでも目安で、概算になります。実際にローン契約をする際は、詳細を金融機関にご確認ください。
※ 実際のローン契約時には諸費用・税金(手数料や印紙税、保証料など)が別途かかりますので、契約の際にご確認ください。

物件コード「生野区桃谷4丁目 中古戸建」をお伝えください。

電話でお問合せ
電話でお問合せ メールでお問合せ
メールでお問合せ
OK