令和07年11月7日 14時09分 更新
次回更新予定日:令和07年11月8日
センチュリー21 リブプライム不動産
勝山北 中古一戸建て物件情報
会員公開物件数213件  全物件数290件
お気軽にお問合せ下さい♪
06-6736-5184
一般公開物件数77件  会員公開物件数213件
物件番号 
物     件    種     目
住            所
価    格 駅   名
徒   歩
土 地 面 積
建 物 面 積
間  取
構  造
築 年 月 詳細 画像
Bk12220
中古戸建
大阪市生野区勝山北5丁目
2,680万円 桃谷駅
14分
52.53m2
96.78m2
5LDK
鉄骨造
S60/03 間取あり写真あり
昭和60年3月築の鉄骨造3階建・5LDKで、外壁から室内水回りまでフルリフォームを施したばかりの物件です。
最寄り駅から徒歩14分ほどの距離にあり、駅周辺で用事を済ませるのにも便利な一方、道路幅が狭めなので車での出入りはやや慎重に行う必要があります。
とはいえビルトインガレージを備えているため、雨の日も荷物の出し入れがしやすく駐車1台分はしっかり確保。
3階建てならではの多面バルコニーのおかげで採光や風通しにも優れ、部屋数が多いので各ご家族のプライベート空間をしっかり確保できます。
築年数は経っていますが、外壁塗装からキッチン・洗面・浴室などの水回り設備まで新調済みで、これから気持ちよく暮らしていただける仕上がりです。
西向きのお住まいですが、南側にもバルコニーがあり採光面の心配は少なく、駅から近すぎない分落ち着いた住環境を求める方には魅力的かと思います。
価格と広さのバランスを重視される方にはぜひ一度ご覧いただきたい住まいです。
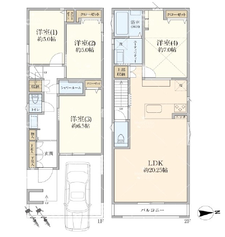
Bk12545
中古戸建
大阪市生野区勝山北4丁目
3,780万円 桃谷駅
12分
60.32m2
114.75m2
4LDK
木造
H19/07 間取あり写真あり
●生野区勝山北4丁目中古戸建、JR桃谷駅12分
●外壁塗装&バルコニー防水済み、重厚感ある美外観
●2024年フルリノベ完了、室内ほぼ新築クオリティ
●4LDK+ビルトインガレージ1台分、雨の日も安心
●広々LDK&全室収納でテレワーク・子育て快適
●南向きワイドバルコニー、陽当り・通風とも◎
●ダークグレー外壁×モダンタイルで上質な印象
●引渡時に新品給湯器へ交換、入居後のコスト軽減
●静かな住宅街、買物・学校も徒歩圏で生活便利




センチュリー21 リブプライム不動産