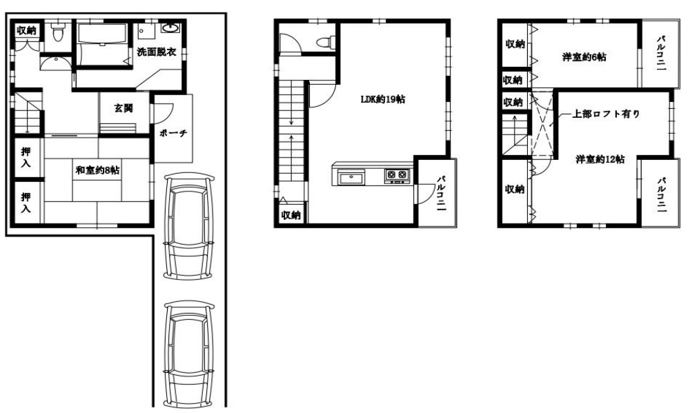
| 生野区田島1丁目 新築戸建 |
大阪市生野区田島1丁目 |
3,280万円 |
− 16分 |
43.63m2 97.29m2 |
4LDK 木造 |
相談 |
|

|
| 生野区巽北2丁目 中古戸建 |
大阪市生野区巽北2丁目 |
3,380万円 |
− 8分 |
49.85m2 87.28m2 |
3SLDK 木造 |
R02/04 即時 |
|

|
令和2年築の木造3階建てで、普通車の駐車が可能なスペースを備えた南向きの戸建住宅です。
大阪メトロ千日前線「北巽」駅から徒歩約8分という立地が魅力的で、通勤や通学にも便利な環境です。
室内は3SLDKの間取りで、広々としたリビングダイニングキッチンが特徴です。
また、全体的に新しさを感じる建物で、延床面積87.28uのゆとりある居住空間を提供します。各部屋には収納スペースが設けられており、ファミリー層には特におすすめの設計です。
外観はモダンなタイル張りで、シンプルかつスタイリッシュな印象を与えます。
一方、駐車場スペースは車の出し入れが容易な設計になっており、普段使いに便利です。
ただし、敷地面積が約49.85uとコンパクトなため、庭や広い外部スペースを希望される方には物足りなさを感じるかもしれません。
また、隣接する建物との距離が近い部分もあり、その点を気にされる方は現地での確認をおすすめします。
周辺には充実した生活施設が整っており、日常の買い物やお子様の通学にも安心です。
南向きで日当たりも良好なこの物件は、新しい住まいをお探しの方にとって魅力的な選択肢となるでしょう。 |
| 大阪市生野区田島2丁目 中古一戸建 |
大阪市生野区田島2丁目 |
3,480万円 |
− 15分 |
86.19m2 153.9m2 |
4LDK 鉄骨造 |
S62/10 即時 |
|

|
●大阪市生野区田島2丁目の「4LDK・鉄骨造3階建」中古戸建、延床面積約153.90u
●1987年12月築のしっかりした構造で、1階部分は事務所や店舗利用も可能なシャッター付きスペース
●1階64.26u・2階44.82u・3階44.82uとフロアごとに用途を分けやすい間取り
●幅員約4mの前面道路に接面6.2m、北向きながらも2階の広々バルコニーから採光・通風良好
●タイル張りの外観が特徴的で、エントランス部分は植栽や自転車置き場としてもゆとりのある広さ
●玄関付近に屋根があり、荷物の出し入れや急な雨の日も安心
●住居スペースと仕事場を両立できるので、在宅ワークや小さなお店・サロン開業にも便利
●人気の「生野区エリア」で、生活利便施設や交通アクセスにも期待大
※築年数相応の経年劣化があり、リフォームや設備交換のご検討をおすすめします
※前面道路幅が4mのため、大型車の出入りに注意が必要です |
| 生野区生野西4丁目 中古戸建 |
大阪市生野区生野西4丁目 |
3,480万円 |
− 4分 |
61.05m2 140.25m2 |
3LDK 鉄骨造 |
H07/01 相談 |
|

|
| エルグリーンたつみ |
大阪市生野区巽西1丁目1-18 |
3,490万円 |
− 12分 |
72.72m2 |
3LDK SRC |
S59/07 相談 |
|
 
|
| 生野区林寺4丁目 売地 |
大阪市生野区林寺4丁目 |
3,580万円 |
− 17分 |
104.19m2 |
|
即時 |
|

|
建築条件なしの売土地としてご案内中で、JR環状線「寺田町」駅からは徒歩約17分と、駅から少し歩きますが、その分周辺は落ち着いた住宅街になっています。
前面道路は約7.2mのゆとりある幅員で、車の出し入れもしやすく日当たりも良好。目の前には公園があり四季を感じる暮らしが可能。
公簿面積104.19uのうちセットバック予定部分を除いた有効面積は約96.61u(約29.22坪)あり、建ぺい率80%・容積率300%という条件を生かして三階建てなど多彩なプランをご検討いただけます。
隣家との隙間が狭い都心部ならではの環境という点はありますが、その分、商業施設や公共機関へのアクセスも比較的便利です。
なお、売主側では新築戸建プラン(総額5,580万円)での建築施工も可能ですので、「自由設計で建てたいけれど、実際の家づくりもまとめて相談したい」という方にも対応できる物件です。
周辺の雰囲気を現地写真でご覧いただくと、全体に整った街並みながらも余裕のある前面道路が特徴的で、完成後は開放感ある暮らしを楽しんでいただけるかと思います。どうぞご興味ございましたら、お気軽にお声がけください。 |
| 生野区巽南1丁目 新築戸建 |
大阪市生野区巽南1丁目 |
 3,580万円 |
− 9分 |
69.28m2 117.36m2 |
4LDK 木造 |
R07/06
 相談 |
|

|
● 【生野区巽南1丁目】耐震等級3・断熱等級4以上の安心新築一戸建て
● 土地約20.9坪×建物約35.4坪、北向き前面道路に面したスタイリッシュな3階建+駐車スペース付
● 2階16帖LDKにキッチン・水回りを集約し、家事動線が短く家族の団らんもしやすい4LDKプラン
● 雨の日も濡れにくいインナーガレージ仕様で、車や自転車をしっかり守れるゆとりのエントランス空間
● 宅配ボックス一体型門柱やバルコニー・収納など、共働き世帯にも嬉しい設備が充実
● フラット35S金利Aタイプ利用可で、長期固定金利のローンを検討しやすい住宅性能
● 建築確認費用75万円・表示登記費用15万円は別途ですが、金額があらかじめ固定されていて資金計画も立てやすい
● 大阪メトロ千日前線「南巽」駅徒歩9分、通勤・通学やお出かけにも便利なロケーション |
| 生野区中川1丁目 中古戸建 |
大阪市生野区中川1丁目 |
3,650万円 |
− 4分 |
69.36m2 67m2 |
2LDK 木造 |
S01 即時 |
|
|
● 近鉄大阪線「今里」駅徒歩4分――梅田・難波へも乗換えスムーズ
● 外壁大判タイル×黒サッシの映えるファサード&南向きガラスバルコニー
● 室内フルリノベ済み*システムキッチン・ユニットバス・温水洗浄便座すべて新品
● ガラス引戸で仕切れる18帖超のLDK+洋室2 テレワークや民泊運用にも◎
● 昭和元年築の木造を補強リフォーム/新規配管・給排水更新で長く安心
● 都市ガス・公営水道・公共下水完備 即入居可&家具家電の持ち込みラクラク
● 商業地域内・建ぺい率80%容積率400% 店舗兼住宅など多用途に活用可
※ 前面私道につき建築基準法上の道路要件を満たさず「再建築不可」で融資条件が制限される場合があります |
| 生野区巽北1丁目 新築戸建 |
大阪市生野区巽北1丁目 |
 3,690万円 |
− 14分 |
62.64m2 101.65m2 |
4LDK 木造 |
即時 |
|

|
新築ならではの明るく清潔感のある住まいをお探しの方におすすめの一邸です。
所在地は大阪市生野区内の準工業地域で、最寄り駅まで徒歩13分ほどと日常の移動にも比較的便利な立地です。
周辺には小学校やスーパーが徒歩数分圏内にあり、日々のお買い物や通学もスムーズにこなせます。
近くに病院やコンビニがあるのも安心できるポイントです。
土地面積は約62.64uで、建ぺい率80%・容積率200%のため、敷地に対してしっかり居住スペースが確保された4LDKプランとなっています。
延べ床面積約101.65uの3階建てで、駐車スペースも確保済みです。
ただし前面道路は幅員約4.2mとやや狭く、車の出し入れには慣れが必要かもしれません。
周辺は古くからの住宅や作業所などが混在している地域柄で、建物同士の距離が近い印象もありますが、その分生活圏がコンパクトにまとまっており、近所づきあいを大切にされる方には馴染みやすい環境です。
完成時期は2月下旬〜3月初旬頃を予定しており、新生活のスタートを春に合わせられるのもうれしいところです。
販売価格は3,780万円ですが、別途外構費用として100万円が必要となりますのでご注意ください。
利便性と新築ならではの快適性を両立した、家族みんなで暮らしやすい住まいです。
現地の状況や周辺環境など、まずはぜひ一度ご確認いただければと思います。 |
| 生野区新今里5丁目 中古戸建 |
大阪市生野区新今里5丁目 |
3,780万円 |
− 7分 |
60.93m2 124.74m2 |
4LDK 鉄骨造 |
H09/09 相談 |
|

|
● 南向き接道×3階建て、明るい住空間
● 2階にLDK約22帖、家族が集まるワンフロア設計
● ビルトイン駐車1台分、雨の日も乗降スムーズ
● 前面道路約5.4mで車の出し入れしやすい
● 平成30年にキッチン・浴室・トイレ・玄関新調
● 同年クロス・床張替え、室内の質感を一新
● 令和4年に外壁塗装済みで外観きれい
● 令和6年に給湯器交換、生活ランニング安心
● 3階に洋室3室+バルコニーで洗濯動線◎
● 1階に独立洋室、在宅ワークや来客時にも便 |
| 生野区新今里1丁目 中古戸建 |
大阪市生野区新今里1丁目 |
3,780万円 |
− 9分 |
49.33m2 109.89m2 |
4LDK 鉄骨造 |
H14/09 相談 |
|

|
| 生野区生野東1丁目 売地 |
大阪市生野区生野東1丁目 |
3,800万円 |
− 15分 |
153.61m2 |
|
相談 |
|

|
● 【生野区/建築条件なし】有効宅地約36.3坪のゆったりサイズ
● 現況更地で即プラン検討OK
● 私道負担あり(通路部分約33.36u)※図面記載どおり |
| 生野区中川東1丁目 中古戸建 |
大阪市生野区中川東1丁目 |
3,860万円 |
− 13分 |
96.46m2 83.83m2 |
5LDK 木造 |
H30/08 相談 |
|

|
| 生野区中川西1丁目 新築戸建 |
大阪市生野区中川西1丁目4-14 |
3,880万円 |
− 9分 |
66.04m2 127.43m2 |
4LDK 木造 |
相談 |

|
|
こちらの物件は、大阪市生野区中川西1丁目4-14に位置する新築戸建で、価格は3,880万円です。
大阪メトロ千日前線「今里」駅から徒歩9分という好立地が魅力です。
さらに、JR大阪環状線・近鉄線・大阪メトロ「鶴橋」駅にも徒歩12分でアクセス可能で、3沿線が利用できる利便性の高さが大きなポイントとなっています。
土地面積は66.04u(約19.97坪)、建物面積は127.43u(約38.54坪)の4LDKで、ファミリーに最適な広さを提供します。
木造3階建ての構造で、建ぺい率80%、容積率240%となっています。
完成済ですので、内覧可能です。
学校区は大池小学校と大池中学校です。
この物件は南向きで、土地の間口は6.15mあります。
前面道路は幅員4mの公道で整備が行き届いており、確定測量済みのため、隣接地との土地境界ポイントも明確です。
敷地北側は月極駐車場で、建物がないため、開放感があり通風や陽当たりも抜群です。
建物設備も充実しており、リビングには床暖房を完備。寒い季節でも快適に過ごせます。
対面式システムキッチンには食洗器が備え付けられており、家事効率を向上させます。
バスルームにはカワックやミストサウナなどの乾燥設備があり、リラックスした時間をお過ごしいただけます。
さらに、隣家との距離を十分に確保する設計が施されており、通風や陽当たりが良好です。
周辺には高い建物が少なく、日当たりの良さも魅力の一つです。
なお、本物件は外構工事費や建築確認申請費用を含めた価格となっており、物件に関する追加費用は一切ございません。
興味をお持ちの方はぜひお気軽にお問い合わせください。
現地で物件をご覧いただければ、さらに詳しい情報をご案内いたします。 |
| 生野区舎利寺1丁目 新築戸建 |
大阪市生野区舎利寺1丁目1-6 |
 3,980万円 |
− 18分 |
71.32m2 87.34m2 |
3LDK 木造 |
R07/01 相談 |
|

|
●【生野区舎利寺】新築3LDK・北向き接道
● 前面道路約7m×間口約8mで車の出し入れラク
● 駐車1台可・雨天も玄関まで段差少なめ動線
● LDK約15.6帖、木目天井×対面キッチンの一体感
● 食洗機・浄水器・三口コンロで家事効率UP
● 浴室乾燥機・三面鏡洗面・室内物干し想定OK
● 主寝室にWIC、各室収納充実でスッキリ生活
● 南北に窓配置、バルコニーで採光と通風を確保
● 玄関土間に可動棚ニッチ、ベビーカーも置ける
● 省エネ基準適合×耐震等級3の安心性能
● 完成済み・即入居可、内覧はいつでもどうぞ
※所有権移転登記費用とは別に新築のため建物表示登記費用12万円必要
※司法書士は売主の指定司法書士になります。
※外交費用50万円別途必要となります。 |
| 生野区田島3丁目 新築戸建 2号地 |
大阪市生野区田島3丁目 |
4,080万円 |
− 22分 |
96.79m2 100.44m2 |
4LDK 木造 |
R08/01
 |
|

|
●北西角地で開放感と採光
●駐車2台可※車種によります
●回遊動線で家事が時短に
●豊富な収納でいつもスッキリ
●LDK中心の団欒プラン |
| 生野区田島3丁目 新築戸建 3号地 |
大阪市生野区田島3丁目 |
4,180万円 |
− 22分 |
105.3m2 103.68m2 |
3SLDK 木造 |
R08/01
 |
|

|
| 生野区田島3丁目 新築戸建 4号地 |
大阪市生野区田島3丁目 |
4,180万円 |
− 22分 |
104.58m2 103.68m2 |
3SLDK 木造 |
R08/01
 |
|

|
| 生野区巽東4丁目 中古戸建 |
大阪市生野区巽東4丁目 |
4,280万円 |
− 11分 |
106.13m2 119.07m2 |
3LDK 木造 |
H18/08 相談 |
|

|
| 生野区中川4丁目 売地 |
大阪市生野区中川4丁目 |
4,360万円 |
− 16分 |
147.43m2 |
|
即時 |
|

|